Photo: SIGA
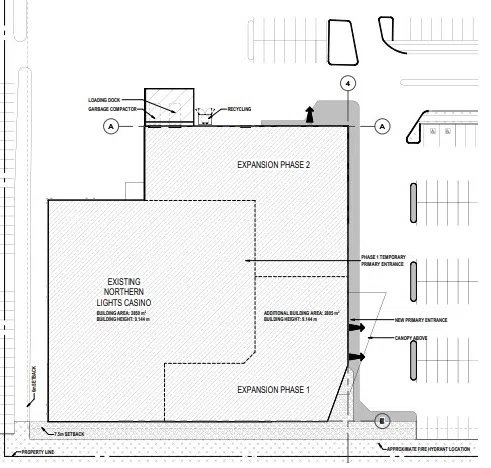
Plans for a multimillion-dollar expansion of the Northern Lights Casino in Prince Albert were revealed today, which will double the size of the building over the next two years.
Angela Isbister, General Manager at the Northern Lights Casino, says the current building leaves employees and customers cramped for space, and the need for an upgrade was crucial.
Construction will take place in three phases.
“In phase one we have to do a temporary entrance. That’s going to be where the current kitchen and restaurant is. Then there’s phase two, with the interior side, building the smoke room and expanding that gaming floor. The third (phase) is going to be the administrative offices and storage space.”
She adds that operations will continue unaffected through the duration of the project.
Phase one will begin in September, focusing on the entrance, restaurant and kitchen.
“We’re going to have a bigger restaurant, a bigger kitchen. Our kitchen is very small right now, and it’s going to be almost triple in size (after the project). We have an amazing executive chef here, along with her team, and she’s really looking forward to that expansion in the kitchen, as well as the expansion in the restaurant.”
She estimates that an average of 30,000 visit Northern Lights per month, making it one of SIGA’s busiest casinos.
“Not only is this expansion is going to increase our revenues, but it is also going to increase what we provide to the community, community development. We do have a lot of partnerships within the community that we support.”
Isbister says after this expansion, the Northern Lights Casino will be the largest of all seven Saskatchewan Indian Gaming Authority’s casinos.
The project is slated to take roughly two years.

Photo: Prince Albert City Council Agenda
























